Beschrijving
SUPER DELUXE APPARTEMENT IN ROTTERDAM HILLESUIS!
Zoekt u een kant en klaar appartement waar u niet hoeft te klussen? Maak dan snel een afspraak!
Aan de levendige Beijerlandselaan in Rotterdam bieden wij dit hoogwaardig en stijlvol gerenoveerde hoek appartement aan. De woning is met oog voor detail en luxe afgewerkt en combineert modern wooncomfort met een centrale ligging in de stad. Dankzij de hoogwaardige materialen, strakke afwerking en slimme indeling is dit appartement volledig instap klaar.
De woning beschikt over een lichte en ruime woonkamer, een moderne open keuken met kookeiland en inbouwapparatuur, een comfortabele slaapkamer en een luxe afgewerkte badkamer. Grote raampartijen zorgen voor veel natuurlijk licht en geven het appartement een ruimtelijke en aangename sfeer.
Hier woon je comfortabel in een modern appartement, midden in een dynamische stadsomgeving met alle voorzieningen binnen handbereik.
Ligging
De woning ligt aan de bekende Beijerlandselaan in Rotterdam-Zuid, een levendige straat met een breed aanbod aan winkels, supermarkten, horeca en dagelijkse voorzieningen. Openbaar vervoer (tram en bus) bevindt zich op loopafstand en binnen enkele minuten bereik je het centrum van Rotterdam. Ook uitvalswegen richting de ring van Rotterdam zijn eenvoudig bereikbaar.
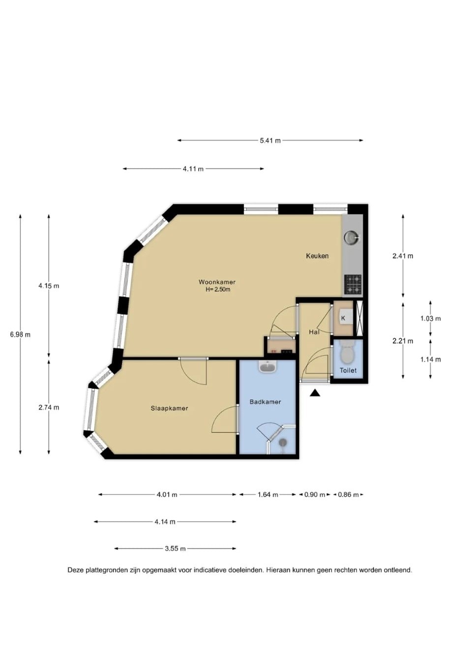
Indeling
Begane grond
Entree via het portiek met trapopgang naar de woning op de 2e verdieping.
Woning
Binnenkomst in de hal die toegang biedt tot de verschillende vertrekken van het appartement. In de hal is ook het nieuwe hangende toilet met tegels tot het plafond.
De ruime en lichte woonkamer vormt het hart van de woning en biedt voldoende ruimte voor zowel een comfortabele zithoek als een eethoek. Door de grote ramen en hoekligging valt er veel daglicht naar binnen, wat zorgt voor een aangename en open sfeer.
De moderne open keuken met kookeiland is stijlvol uitgevoerd en voorzien van diverse A-merk inbouwapparatuur (AEG, Bosch), zoals een kookplaat, ingebouwde afzuigkap, wijnkoeler, combi magnetron en koelkast met vriezer. De combinatie van design en functionaliteit maakt deze keuken perfect voor zowel dagelijks gebruik als gezellige etentjes.
De slaapkamer is ruim opgezet en biedt voldoende ruimte voor een groot bed en kastruimte.
De luxe badkamer is modern afgewerkt en voorzien van een ruime inloopdouche met regendouche en aparte wasmachineruimte, een stijlvol wastafelmeubel en hoogwaardige materialen.
Bijzonderheden
- Volledig luxe gerenoveerd
- Instap klaar appartement
- Hoogwaardige afwerking
- Moderne keuken met inbouwapparatuur
- Luxe badkamer met inloopdouche
- Veel natuurlijke lichtinval
Gelegen aan een levendige winkelstraat
Servicekosten bedragen EUR 121,14 per maand
Goede bereikbaarheid met OV en uitvalswegen
Oplevering in overleg, kan direct.
Ondanks dat deze aanmelding met de nodige zorgvuldigheid is samengesteld, is alle verstrekte informatie nadrukkelijk onder voorbehoud, uitsluitend indicatief, bedoeld als voorbeeld en daardoor niet bindend voor het eindresultaat. Aan deze woninginformatie kunnen geen rechten of verplichtingen worden ontleend, onzerzijds wordt geen enkele aansprakelijkheid aanvaard voor enige onvolledigheid, onjuistheid of anderszins, dan wel de gevolgen daarvan.